Modernes Penthouse

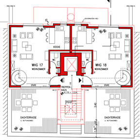
Die zwei Penthäuser im 5. Geschoss sind Maisonettewohnungen auf 90 Quadratmetern mit jeweils zwei Terrassen auf der 5. und der 7. Ebene.

Panel 1

pic

Panel 2

pic

Panel 3

pic

Panel 4

pic

Panel 5

pic

Panel 6

pic

Panel 7

pic

pic
pic
pic
pic
pic
pic
pic
Maisonettewohnung, 5. und 6. Etage, 120 qm mit
je zwei Dachterrassen